Floor Plans

Image
Building with Garden

Riverfront is located at 22 South Front Street, which is a 40-unit multi-generational condominium building set around a beautiful, lushly landscaped courtyard. A variety of floor plans is available. Each spacious unit features Brazilian cherry floors throughout with radiant floor heat. Solid concrete floors and ceilings filter out the sounds of the vibrant city at your doorstep.

Members of the Riverfront community may avail themselves of private community rooms where individual and group activities take place. Each week there are one or two shared meals, morning exercise groups, and impromptu evening get-togethers.

An elected Riverfront board manages an array of available activities. The building itself is professionally managed. 

See photos of the building, common areas and units here.

Float Right 50%

Floor Plans

Image
Loft, One Bath with Terrace

Loft, One Bath with Terrace
Unit C4 - 605 sq. ft.

Image
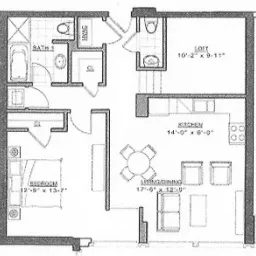
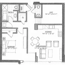
One Bedroom, Loft, 1-1/2 Bath

One Bedroom, Loft, 1-1/2 Bath
Unit B3 - 962 sq. ft.

Image
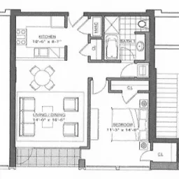
One Bedroom, One Bath with Terrace

One Bedroom, One Bath with Terrace
Unit D1 - 812 sq. ft.

Image
Two Bedroom, Two Bath with Terrace

Two Bedroom, Two Bath with Terrace
Unit C1 - 1203 sq. ft.

Image
Two Bedroom, Two Bath with Terrace

Two Bedroom, Two Bath with Terrace
Unit A1 - 1536 sq. ft.